梯形图命令是一种广泛应用于工业自动化控制领域的编程语言,主要用于可编程逻辑控制器(PLC)的程序设计,它采用图形化的表示方式,模拟继电器控制电路的逻辑关系,使得工程师能够直观地理解和编写控制逻辑,梯形图命令基于继电器梯形图的原理,通过触点、线圈和功能框等基本元素组合,实现对工业设备运行状态的精确控制,以下将从梯形图的基本结构、常用命令类型、编程规则及实际应用场景等方面进行详细阐述。

梯形图的基本结构由左侧的垂直电源线(称为“左母线”)和右侧的垂直返回线(称为“右母线”)组成,中间通过水平连接线和各种逻辑元件串联或并联构成控制回路,每个梯级(rung)代表一个独立的逻辑行,从左母线开始,经过触点的组合逻辑,最终驱动线圈或功能框,触点分为常开(NO)和常闭(NC)两种类型,常开触点在条件满足时导通,常闭触点则在条件不满足时导通,线圈通常代表输出设备,如电机、电磁阀或指示灯等,当其左侧的逻辑条件为真时,线圈被激励,对应的输出设备动作,功能框则用于实现更复杂的运算,如定时器、计数器或数学运算等。
在梯形图编程中,常用的命令类型包括基本逻辑命令、定时器命令、计数器命令和功能命令等,基本逻辑命令包括与(AND)、或(OR)、非(NOT)等逻辑运算,通过触点的串并联实现,多个常开触点串联表示“与”逻辑,即所有触点均闭合时,回路导通;多个触点并联则表示“或”逻辑,任一触点闭合即可导通通,定时器命令用于实现延时控制,常见的有接通延时定时器(TON)、断开延时定时器(TOF)和保持型定时器(RTO),以TON为例,当输入条件满足时,定时器开始计时,达到预设时间后,定时器触点动作,驱动输出设备,计数器命令用于计数功能,包括加计数器(CTU)、减计数器(CTD)和加减计数器(CTUD),通过脉冲信号触发,达到设定计数值后,计数器触点动作,功能命令则包括比较、移位、数学运算等高级功能,例如CMP命令用于比较两个数值的大小,MOV命令用于数据传输,SHL命令用于数据移位等。
梯形图编程需遵循一定的规则以确保程序的正确性和可读性,每个梯级必须以触点开始,以线圈或功能框结束,不能直接将线圈与左母线连接(除非使用特殊指令),触点和线圈不能直接串联或并联,必须通过水平连接线连接,梯形图的编写应遵循从左到右、从上到下的顺序,避免复杂的交叉连线,必要时可通过分支指令(如分支开始和分支结束)实现多路逻辑控制,在实际编程中,还需注意输入/输出(I/O)地址的分配,确保每个触点和线圈对应的物理地址与硬件接线一致,避免逻辑错误。
梯形图命令的应用场景非常广泛,几乎涵盖了所有工业自动化领域,在制造业中,梯形图常用于控制生产线上的传送带、机械臂和装配设备等,实现顺序控制和逻辑联锁,在包装机控制中,通过梯形图实现物料检测、定位、封合等步骤的自动化操作,在过程控制领域,梯形图与传感器、执行器结合,用于温度、压力、流量等参数的监测和调节,如锅炉燃烧控制系统的逻辑编程,在楼宇自动化中,梯形图可用于电梯控制、照明系统监控和空调系统调节等,梯形图也广泛应用于交通信号控制、水处理系统、能源管理等场景,其稳定性和可靠性使其成为工业控制的核心工具。

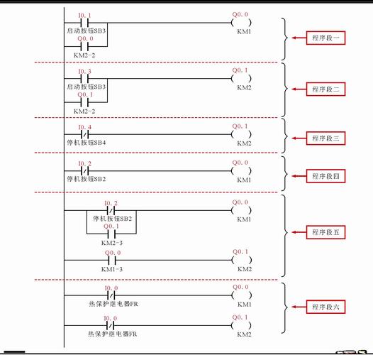
为了更直观地理解梯形图命令的应用,以下通过一个简单的例子说明,假设有一个电机控制回路,要求按下启动按钮后电机运行,同时按下停止按钮或热继电器动作时电机停止,对应的梯形图程序可设计为:第一梯级中,启动按钮(常开触点)与停止按钮(常闭触点)、热继电器(常闭触点)串联,驱动电机线圈(KM),当启动按钮按下时,常开触点闭合,回路导通,电机运行;当停止按钮按下或热继电器动作时,常闭触点断开,回路断开,电机停止,该程序体现了梯形图的基本逻辑控制功能,简单易懂且易于实现。
以下是梯形图编程中常见命令的符号及功能说明表:
| 命令类型 | 符号 | 功能描述 |
|---|---|---|
| 常开触点 | 输入条件满足时导通 | |
| 常闭触点 | 输入条件不满足时导通 | |
| 线圈 | 输出设备,逻辑条件为真时激励 | |
| 接通延时定时器(TON) | TON | 输入条件满足后延时导通 |
| 加计数器(CTU) | CTU | 脉冲上升沿计数,达到设定值时导通 |
| 与逻辑(AND) | 多个触点串联,全部满足时导通 | |
| 或逻辑(OR) | 多个触点并联,任一满足时导通 |
在实际应用中,梯形图命令的编写需要结合具体的PLC型号和编程软件,如西门子的STEP 7、罗克韦尔的RSLogix等,不同品牌的PLC在指令集和语法上可能存在差异,但基本逻辑原理相似,工程师需熟悉硬件配置和指令手册,根据控制需求合理设计梯形图程序,并进行仿真测试和现场调试,以确保系统的稳定运行。
相关问答FAQs:

-
问:梯形图与功能块图(FBD)有何区别?
答:梯形图采用继电器电路的图形化表示,侧重于逻辑控制和顺序控制,适合离散量控制;而功能块图使用功能模块的连接表示控制逻辑,更适合连续过程控制和复杂算法实现,梯形图更直观易学,功能块图则模块化程度更高,适合复杂系统设计。 -
问:如何优化梯形图程序以提高执行效率?
答:优化梯形图程序的方法包括:减少不必要的梯级和触点,避免复杂的串并联结构;合理使用定时器和计数器,避免重复逻辑;将常用功能封装为子程序或功能块,减少代码冗余;添加注释和分段标注,提高程序可读性;通过编程软件的仿真功能测试程序逻辑,确保无冗余或冲突,定期备份和更新程序,根据实际运行情况调整逻辑,也有助于提升程序效率。
